プロフィール
イラスト
外観
マップ
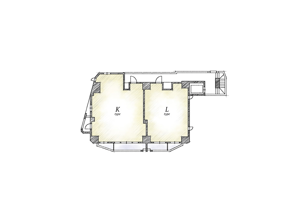
間取り
間取り平面
断面
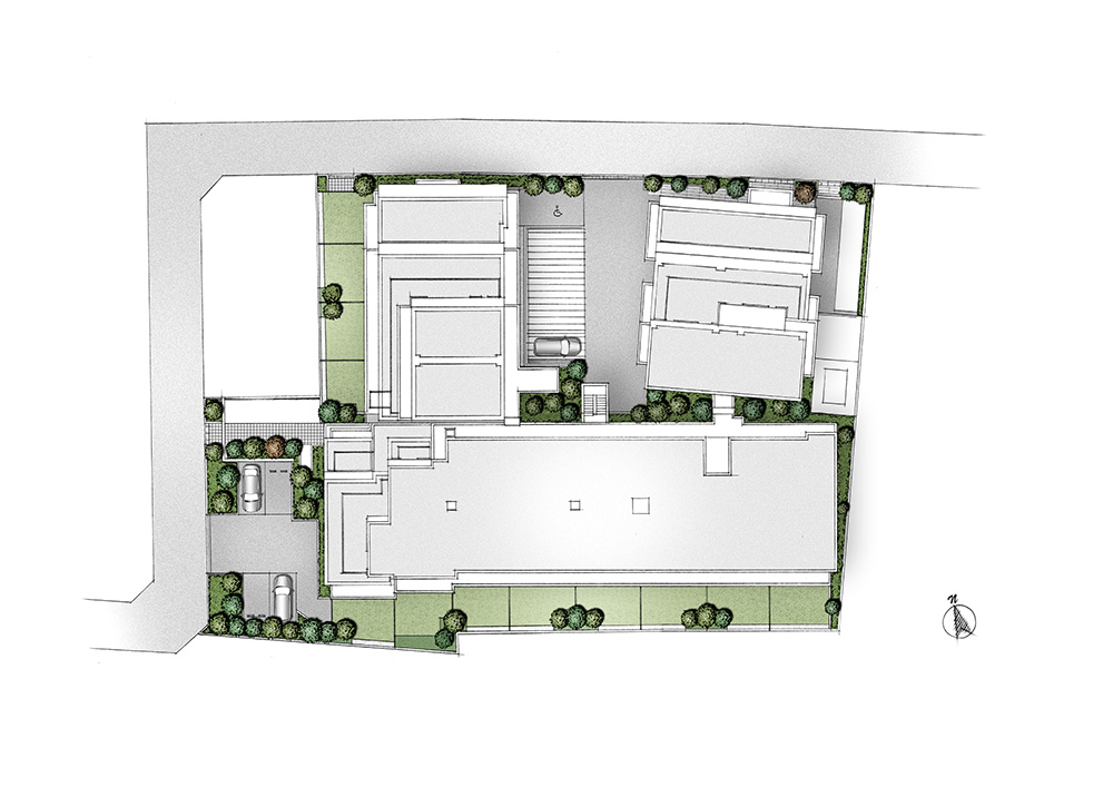
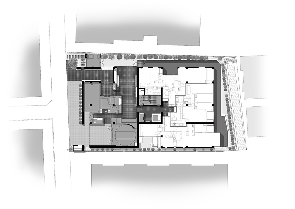
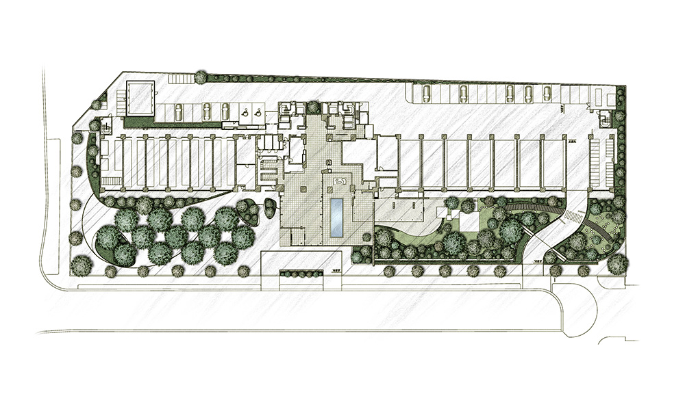
敷地配置図
CG
写真加工
お問い合わせ
敷地配置図
2025.11.06
Image
Image
Image
ホーム
メニュー
プロフィール
イラスト
外観
マップ
間取り
間取り平面
断面
敷地配置図
CG
写真加工
お問い合わせ
ホーム
検索
トップ
サイドバー
タイトルとURLをコピーしました